Saint Germain

N° de référence 1773

92m²

3 chambres

2 salles de bain

2ème étage

Ascenseur

Saint Germain en Laye 78100

Descriptif

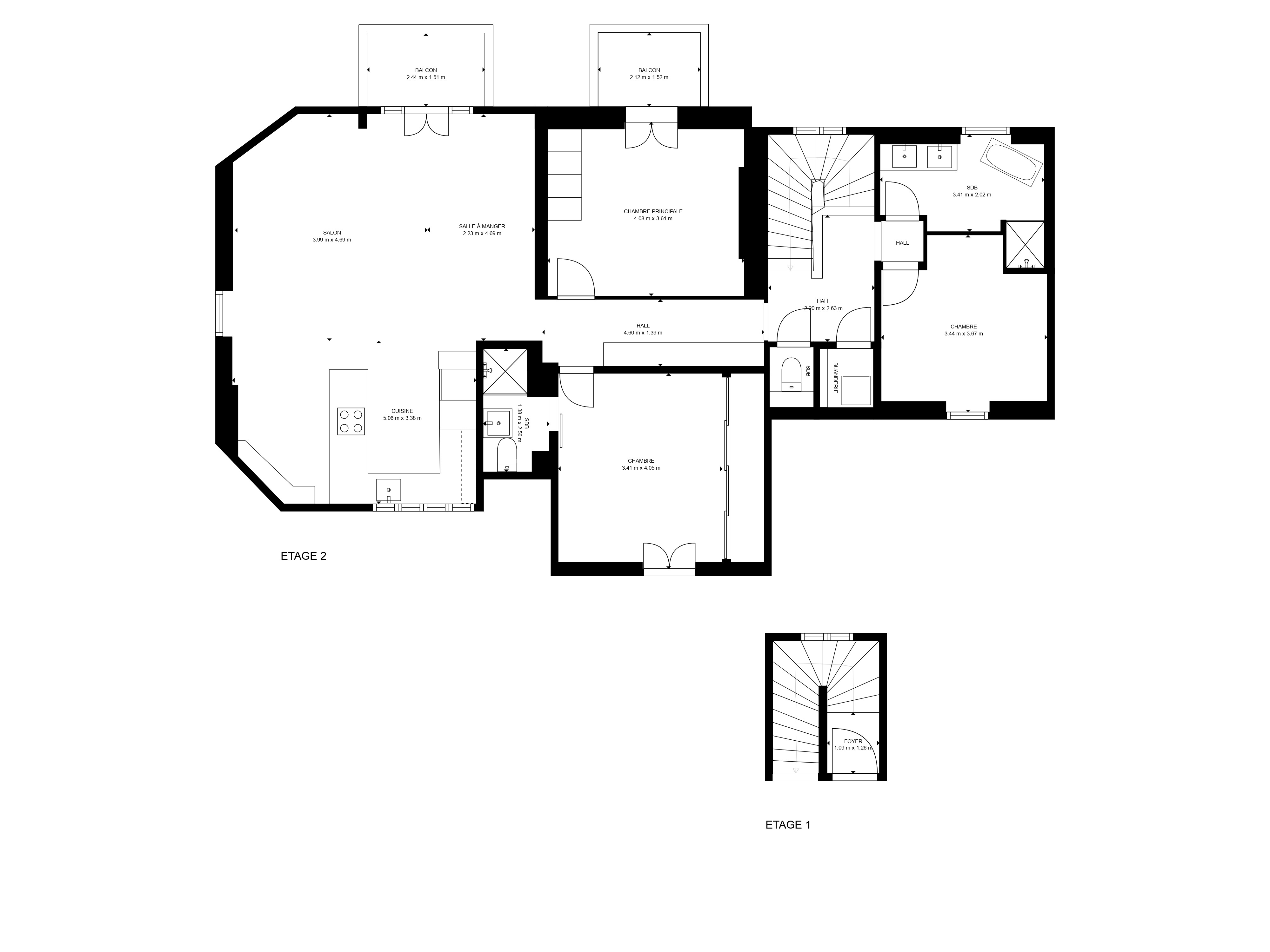
Saint Germain en Laye – Avenue Carnot - Appartement 4 Pièces 92 m2

Nous vous proposons en EXCLUSIVITÉ situé dans un immeuble de caractère à Saint-Germain-en-Laye, un charmant appartement de 92 m² en loi Carrez et 110 m² habitable offre un cadre de vie unique, alliant charme de l’ancien et prestations modernes. L’appartement bénéficie d’un environnement verdoyant et se compose comme suit : un escalier d’entrée, une pièce à vivre de 32 m2 avec un plafond cathédral et des poutres apparentes, une cuisine ouverte et équipée, trois chambres dont une avec salle d’eau et WC, une salle de bains avec baignoire et douche, toilettes séparées, buanderie et balcons. Une grande cave au sous-sol et un emplacement de parking complètent ce bien.

À proximité immédiate de la forêt de Saint-Germain, avec un exclusive club du golf exlcuive et offrant un accès facile au centre historique ainsi qu'au château de Saint-Germain-en-Laye. Dans un quartier très scolarisé comprenant une école Montessori, un lycée international et un campus de Sciences Po. Ce bien rare représente une opportunité exceptionnelle pour vivre dans l’un des villes les plus prisés de la région parisienne.

 

Copropriété de 4 lots

Charges 343 € par trimestre

Taxes foncières 1 845 € par an

DPE 321 (E) / 10 (B)

 

 

4 pièces
3 chambres
2 salles de bain

Equipements

Balcon
Cave
Chauffage électrique
Parking

Environnement

Gare

  • RER : Saint Germain

895 000 €

Besoin de renseignements ?

+33 1 42 33 00 65